Rodinný dom, Trenčín

Návrh rodinného domu pre mladú rodinu s tromi deťmi.

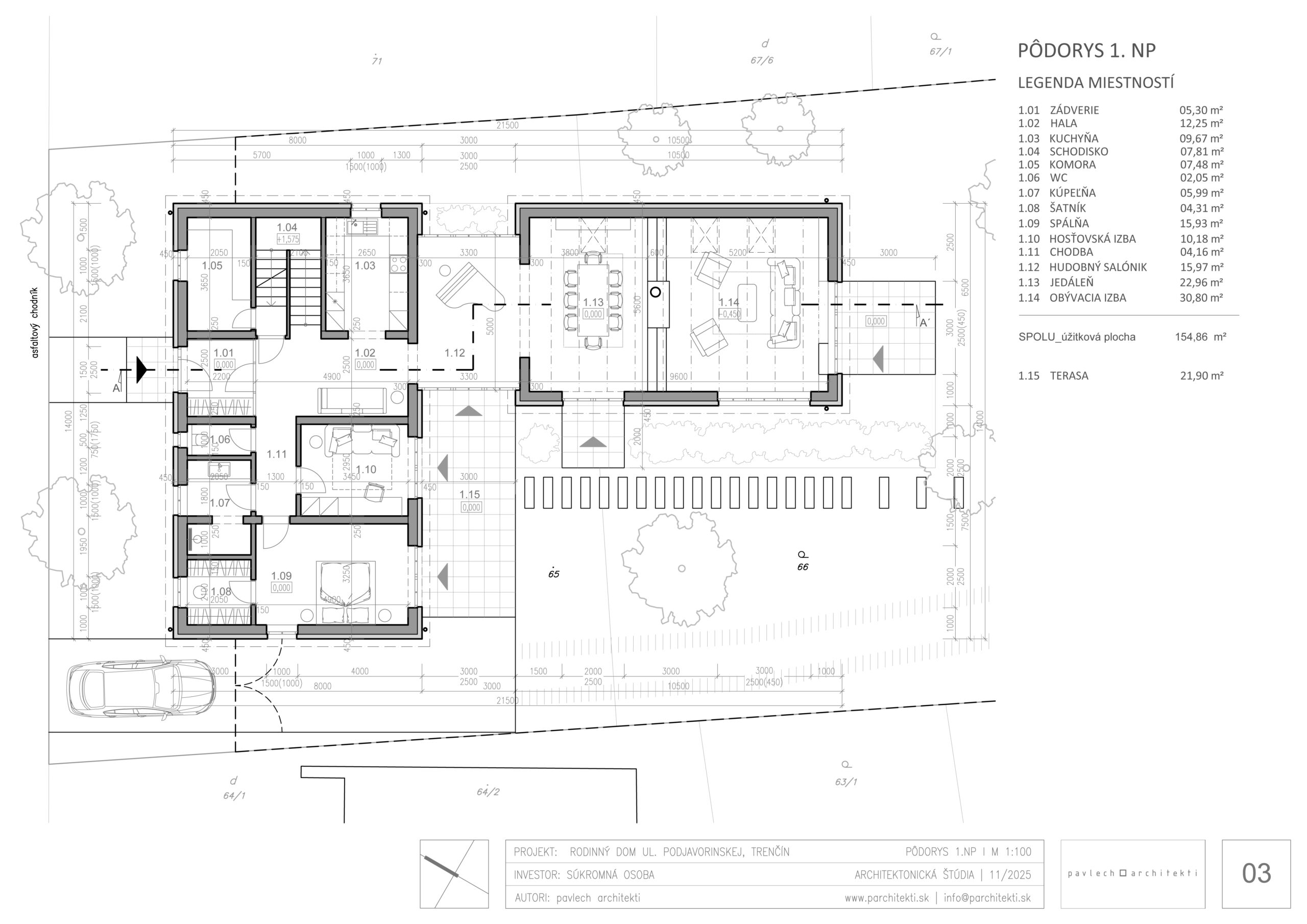
Dva domy tvoria jeden celok, jeden dom. Denná časť je takmer celá v samostatnom objekte. Pracovne ho voláme „stodola“.

V tejto časti sa nachádza obývačka a jedáleň s knižnicou. Stodola je otvorená až po strechu a s domom je spojená cez hudobný salónik s klavírnym krídlom.

Samotný „klasický“ dom tvoria vstupné priestory, hala, schodisko, hosťovská izba, kúpeľňa, WC, spálňa so šatníkom, kuchyňa a komora.

Dom je v časti podpivničený. V suteréne sme navrhli technickú miestnosť, sklad a menšiu spoločenskú miestnosť.

Dom je omietnutý, stodola obložená tehličkovým obkladom.

Obe časti domu sú prestrešené sedlovou strechou a majú jednotiacu keramickú škridlu šedej farby.

 

Podobným domom, ale viac z prírodného, kopaničiarskeho prostredia, je Dom Jazviny.

 

 

 

 

 

 

 

Autori
Ing.arch. Marek Pavlech, Ing.arch. David Repiský
Miesto
Trenčín
Úžitková plocha
272,00 m2
Návrh
2025 - 2026
Realizácia
2027
Charakter
Novostavba
Kategória